
FOR SALE: Residential development site situated at Church Hill Road, Caledon
OVERVIEW
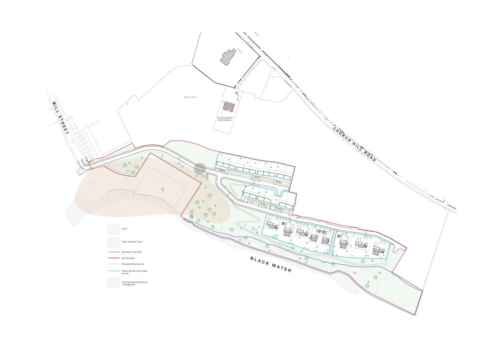
Church Hill Road is an elegant and unique modern architect designed development; offering 25 homes. Ideally situated to the edge of the attractive village of Caledon. It is part of a picture postcard landscape, set below a magnificent traditional Churchyard designed by John Nash, overlooking the River Blackwater. Its setting and design combine to hark back to an enduring past and sense of place.
Location and Setting:
Brimming with opportunity the development is well situated in relation to Armagh, Dungannon & Monaghan. It offers Developers a unique low-density development, set within one of Northern Irelands most sought after villages.
Being a historic village of much vernacular importance, which comprises a host of listed buildings and a Conservation Area. The village’s desirability, assisted by the thriving Regeneration Partnership, has initiated a flourishing community; recently resulting in substantial funding as part of the ‘Village Catalyst’ pilot. The design brief of the development is similarly forward thinking, comprising the combination of modern standards and traditional design; akin to developments such as Poundbury.
Residential Development:
An open development concept draws and takes full advantage of traditional village life. In combination, the permeability of the development, with Caledon’s strong community and attractive historic aesthetics; will undoubtedly excite prospective purchasers to the eventually developed properties. As will the open areas within the development, overlooking the classically designed properties, which blend in well with their timeless surroundings. (As per design & table within gallery, drawings are indicative only).
Furthermore, the development is proximal to a range of community facilities, and amenities including:
- Village shop, café/restaurants, churches, post office, community hall
- Local schooling including St Patricks Grammar School, The Royal School, Armagh and The Royal School, Dungannon & Church Hill Primary School (walking distance).
- Caledon Arms Hotel is to re-open this year as a restaurant, bistro and brewery
- Caledon Courthouse (with hairdresser) & Woolstore (Nursery/playgroup)
- Village Allotments
- Riverside and countryside walks abound
Connectivity:
- Belfast: One hour
- Dublin: One and a half hours
FOR FURTHER INFORMATION OR TO ARRANGE A VIEWING PLEASE CONTACT:
Matthew Reed FAAV, BH Estates
T: 028 9048 0285
E: property@bhestates.com